【机情无限 精彩毕设】机械2023届毕业设计(论文)中期检查优秀案例分享第九期——浮车型五模块有轨电车动力转向架方案设计及构架强度分析

学生姓名:蔡镇南
班 级:车辆2019-01班
指导教师:黄运华
毕设题目:浮车型五模块有轨电车动力转向架方案设计及构架强度分析


一、概况
1.选题意义
十九世纪三十年代,随着地面铁路的产生,有轨电车和地下铁路逐渐出现在城市交通中。1834年,美国街道上出现最早以蓄电池为动力的有轨电车,此后英国也相继建成一系列有轨电车线路。在二十世纪初,有轨电车达到了全盛。然而随着汽车行业的兴起和发展,有轨电车由盛转衰,载客量大幅下降。相比之下,地下铁路系统具有运量大、对地面交通无干扰、无噪声等特点,在工业迅速发展时期有效缓解了人口增长带来的城市拥堵。不可否认,如今城市地铁在大城市公共交通中占据优势地位,但就综合经济效益而言,仍需与其它公共交通工具配合。
在城市轨道交通发展的过程中,先后出现了地铁、新型城轨车辆和新型磁悬浮列车等多种轨道交通装备。地铁车辆经过长达120年的发展,在转向架技术上形成了A\B\C型转向架,车体材料由耐候钢发展为铝合金和不锈钢,轻量化和智能化不断提高。新型磁浮列车在常导和超导两大方向的相关技术仍不够成熟,商业运行路线较少;跨座式单轨运输能力强,但道岔结构复杂,生产难度大;悬挂式空轨造价低,具有全天候性能,但维修困难。
相比之下,现代有轨电车吸收了地铁车辆和信号控制等技术,逐步发展为解决城市核心地区的换乘,城郊衔接的首选交通工具。相比地铁,有轨电车具有建设成本低,工程量小的优势,相比公共汽车,它具有载客量大、故障率低和环境污染小的优势。在商业区的构建,景区观光接待和城郊衔接等应用场景中,有轨电车优势突出。
受这些应用场景的影响,在设计上有轨电车逐渐凸出观景视野、乘坐舒适性、节能环保、快速低噪等特点。以此为导向,有轨电车向着模块化、低地板和高速化的方向发展,在长期的研究发展过程中形成了以单车型、铰接型和浮车型为主的三种车体构型,其中浮车型以其较低的成本和开阔的观景视野而成为主流的发展方向。与此同时,该车体构型对转向架提出了更高的要求,以满足各项动力学性能指标和车辆安全性能指标。为此,合理选择转向架各部件构型,兼顾低地板要求和动力学性能成为研究的重点,本课题致力于实现两者的合理兼顾。
2.任务分解
(1) 资料查阅与文献翻译
a) 查阅参考文献了解国内外发展现状;
b) 翻译指定外文文献;
c) 了解低地板有轨电车的常见转向架类型及其优缺点;
d) 明确转向架设计的基本流程;
(2) 转向架总体方案设计
a) 对转向架各部分进行结构选型设计及总体方案计时,充分考虑选题的制约或影响因素,包括社会、健康、安全、法律、文化以及环境与可持续发展等现实约束,对设计方案的可行性分析评价。
b) 悬挂装置的设计
确定一二系悬挂的弹簧装置及减震器的类型,设计刚度和阻尼。
c) 齿轮箱和牵引电机的设计
确定齿轮箱和牵引电机的布置形式和吊挂形式,以及参数设计。
d) 轴箱设计
合理布置轴箱位置,设计相关尺寸以满足有轨电车对于低地板的要求。
e) 基础制动装置
充分考虑浮车型5模块有轨电车的制动要求,合理选择制动形式,设计相关参数。
f) 车轮设计
充分考虑有轨电车的乘坐舒适性和噪声,以及低地板要求,选择合适的轮径。
(3) 转向架构架设计
a) 构架型式选型设计
根据构架设计原则确定构架型式和方案。
b) 构架组成结构设计
确定构架上各组成部分与其他部件的接口形式。
c) 构架具体尺寸设计
充分考虑低地板有轨电车的转向架动力学性能和低地板要求,对各参数进行设计。
d) 案设计分析时,针对选题的制约或影响因素,包括社会、健康、安全、法律、文化以及环境与可持续发展等现实约束,对设计方案的可行性分析评价。
e) 绘图
完成转向架总体方案图A0,以及构架A0图的绘制。
(4) 构架的强度分析
a) 完成构架的Solidworks三维模型建模;
b) 将模型导入ANSYS进行网格划分生成有限元模型;
c) 根据不同工况的载荷情况对有限元模型进行加载;
d) 利用静强度理论与疲劳强度评定方法对求解结果进行校核
(5) 成果与报告
a) 完成开题报告、中期检查报告、进度报告和结题报告;
b) 完成说明书的撰写;
c) 进行开题答辩、中期答辩和结题答辩

二、已完成工作
截止报告撰写时,浮车型有轨电车动力转向架的总体设计基本完成,完成了转向架各部件的选型设计,在此基础上设计出构架的外形轮廓,并根据受力情况进行参数设计,最终形成完整的三维模型。
有轨电车转向架的设计采用 CJJ_T96-2018 规定的限界标准,确定构造速度为70km/h,轨距为1435mm,轴距确定为1800mm,地板面高度满足低地板有轨电车的标准(即£350mm)。在上述基本参数的基础上,制定有轨电车转向架的总体方案。在转向架的设计阶段,围绕设计难点和设计目标,从选型设计和参数设计两方面入手。
(1) 轮对
本设计采用传统轮对设计方案,并减小车轮轮径以满足地板高度要求。考虑到较小的轮径会降低车轮的使用寿命和恶化动力学性能,轮径应为600mm。由于有轨电车运行线路多在市区城郊,存在小曲线半径,故应采用短轴距转向架以提高曲线通过性能。与此同时,轴距过小也会导致空间布置困难,因此采用1800mm为宜。由于空间限制,一二系悬挂的静挠度不可能设计得太大,低地板有轨电车普遍采用弹性车轮。弹性车轮能够增大车辆的最大静挠度,产生一定得横移量,降低簧下质量,减低噪声。

图 1传统轮对弹性车轮
(2) 分体式内置轴箱
轴箱内置,从而能够降低转向架质量,改善动力学性能,并能将制动盘布置在非驱动端,便于维护检修。与此同时,轴箱内置也使得二系悬挂跨距减小,抗侧滚性能降低,对轴承的寿命和可靠性也提出更高的要求,需增加二系悬挂的刚度,并将轴箱设计成分体式以便运维。

图 2分体式轴箱
(3) 牵引电机和齿轮箱
牵引电机和齿轮箱纵向布置在构架的外侧,满足低地板的要求。为了满足一系悬挂的垂向、横向及纵向挠度,牵引电机和齿轮箱采用架悬的方式,并在齿轮箱和车轮以及齿轮箱和牵引电机之间采用弹性联轴节。

图 3牵引电机和齿轮箱
(4) 空气制动+磁轨制动
有轨电车和地面车辆共享路权,从而需要具备可靠且出色的制动性能,因此在空间允许的情况下采用空气轴盘制动搭配磁轨制动。液压制动虽然体积较小,但空气制动无需补充液压油,没有泄露的风险,因此在空间允许的情况下采用空气制动更能保障安全。

图 4磁轨制动器和空气制动夹钳
(5) 一系悬挂
一系悬挂关系到车辆的运行稳定性,目前大多采用橡胶弹簧,主要是锥形橡胶弹簧和人字形橡胶弹簧两种。考虑到人字形橡胶弹簧高度过高的问题,可以考虑采用锥形橡胶弹簧。

图 5一系锥形橡胶弹簧
(6) 二系悬挂
二系弹簧主要有钢弹簧、空气弹簧和沙漏弹簧三种,出于低地板的设计,转向架一般结构紧凑、质量小,二系弹簧垂向、横向和纵向3向变形大,因此沙漏弹簧更为适合,且载荷小时刚度小,载荷大时刚度大,结构简单,质量轻,可靠性高。二系沙漏簧,布置在侧梁中部,侧梁每侧两个,中间为垂向减振器。

图 6二系沙漏簧和垂向减振器
(7) 单拉杆牵引装置/横向止挡/横向减振器
横向减振器对角布置,横向止挡对中布置,单拉杆牵引装置布置在横梁上,以上布置很好地将各部件与车体地安装座集中在转向架中部。

图 7横向减振器/单拉杆牵引装置/横向止挡
(8) H型焊接式构架
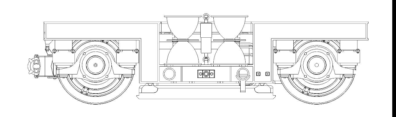
在转向架的各部件的选型设计的基础上,完成构架的外形设计,尺寸设计和安装座的位置设计。构架的结构形式采用H型构架,侧梁为钢板组焊而成,并有悬臂式外延侧梁,搭配四点弹性吊座吊挂牵引电机,横梁采用无缝钢管与两侧梁组焊在一起,其余部件根据与构架的相对位置关系设计安装座。其中侧梁强度要求较高且受空间约束几何形状过渡较少,故在其内部焊接筋板以保证强度,上、下盖板厚14mm,立板厚10mm,横梁采用外径108mm,10mm厚的Q355B无缝钢管。在构架的设计过程中,应注意预留各运动部件的运动空间,避免干涉;各梁的设计应保持等强度设计原则,保证各梁件的寿命一致性;选择合适的板厚使梁件具有合适的刚度,规避大几何变形出现;过渡连接部位应平滑,避免应力集中。在满足以上要求的基础上进行适当的轻量化设计。构架图如图8所示,转向架总体图如图9所示。

图 8构架图
(9) 有限元强度分析
对构架的几何模型进行调整,以便适用于有限元分析,选择合适的单元进行网格划分,在hypermesh中用shell181单元对板材进行网格划分,其余安装座用solid188单元进行网格划分。因此,需要将现有的三维实体模型中的板材用平面代替,其余安装座不变,再将模型导入hypermesh中,构架模型处理如图9所示。此外,还需其他辅助单元,如用刚性单元建立节点间的位移约束和表示刚性结构,各安装座的实体单元与板材的壳单元采用刚性单元模拟焊接结构,单元选择CP_STRUC,限制6个方向的自由度。一系、二系弹簧用COMBIN14模拟,牵引杆和轮对用BEAM188模拟。
三、下一步工作计划
根据当前已完成内容,有序推进以下几个方面
(1) 继续修改有限元模型,在网格划分的时候着重细化截面几何形状快速变化的过渡区域,细化焊缝处的网格。 (2023/3/25-2023/4/23)
(2) 解决不同单元自由度匹配问题,即实体单元与壳单元连接处使用刚性单元连接,解决其余受载部件在有限元软件仿真中的模拟问题。 (2023/3/25-2023/4/23)
(3) 深入了解如何通过有ANSYS限元软件加载标准《UIC615-4转向架构架结构强度分析》规定的超常载荷工况和运营工况。 (2023/3/25-2023/4/23)
(4) 主要是通过有限元软件ANSYS校核构架在超常载荷工况和运营工况下的强度是否满足规定标准,如不符合,则需更改相关尺寸或进行结构调整,直至强度满足要求。(2023/3/25-2023/4/23)
(5) 依据相关绘图标准,绘制完整的转向架总体图和构架图。 (2023/4/24-2023/4/30)
(6) 划分说明书的章节内容,有序推进说明书的逐章撰写,突出详细完整的转向架设计考量,充分说明主要参数的计算过程,展现构架的的强度分析结果。(2023/5/1-2023/5/14)
(7) 汇总各方资料 ,包括转向架的solidworks三维模型,转向架总体图,构架图以及ANSYS有限元分析模型,整理装订说明书,完成毕业设计全部内容。(2023/5/15-2023/5/25)

问题一:设计过程中选型的内在逻辑是什么?
回答:主要围绕设计目标,即合理布置转向架的各构件,选择合适的设计参数,以实现有轨电车的低地板化和乘坐舒适性,并保证构架的强度满足要求。其次,在多方案选择时,凸出主要设计目标,同时也兼顾其他缺点,使其满足设计要求。如本设计采用内置轴箱,以获得优秀的动力学性能,但同时二系弹簧横向跨距减小,导致抗侧滚性能降低,为满足设计要求,可通过改变二系悬挂的刚度得以实现。
问题二:在强度校核时如何改善设计缺陷?
回答:通过有限元强度分析,确定构架应力集中的部位,重新设计尺寸,或者改变设计方案,以满足设计要求。如本设计中构架两侧吊挂牵引电机的外延侧梁可能存在强度不满足要求的问题,可以通过改变板厚,增加内部筋板的方式提高其强度满足设计要求。

在本次毕业设计过程中,深入了解了有轨电车的发展历程,回顾有轨电车国内外的发展现状,总结有轨电车动力转向架的新技术和新方案,能够分析不同设计方案间的优缺点,根据自己的理解进行方案的选型,并从总体上兼顾转向架的各组成部分。
在老师的指导下,明白设计者应当更加关注设计过程中的加工制造问题,考虑设计余量,安装运维等多方面问题,注重工程伦理与可持续发展影响的可行性。设计并非一蹴而就,而是通过反复分析修改成型,因而本设计包含了对于构架的强度分析,通过有限元仿真分析的实践,掌握基本的强度分析的基本范式。